REFERENCIA: 1710/576 - Piso en venta en PACIFICO / Madrid (Madrid).
- Precio de Venta: 980.000 €
Espectacular vivienda de gran tamaño en el barrio de Retiro – zona Pacífico.
Se ofrece magnífica vivienda de amplias dimensiones situada en una de las zonas más demandadas de Madrid, en el barrio de Retiro, zona Pacífico, a escasos pasos de la boca de metro Menéndez Pelayo y a tan solo cinco minutos caminando del Parque del Retiro.
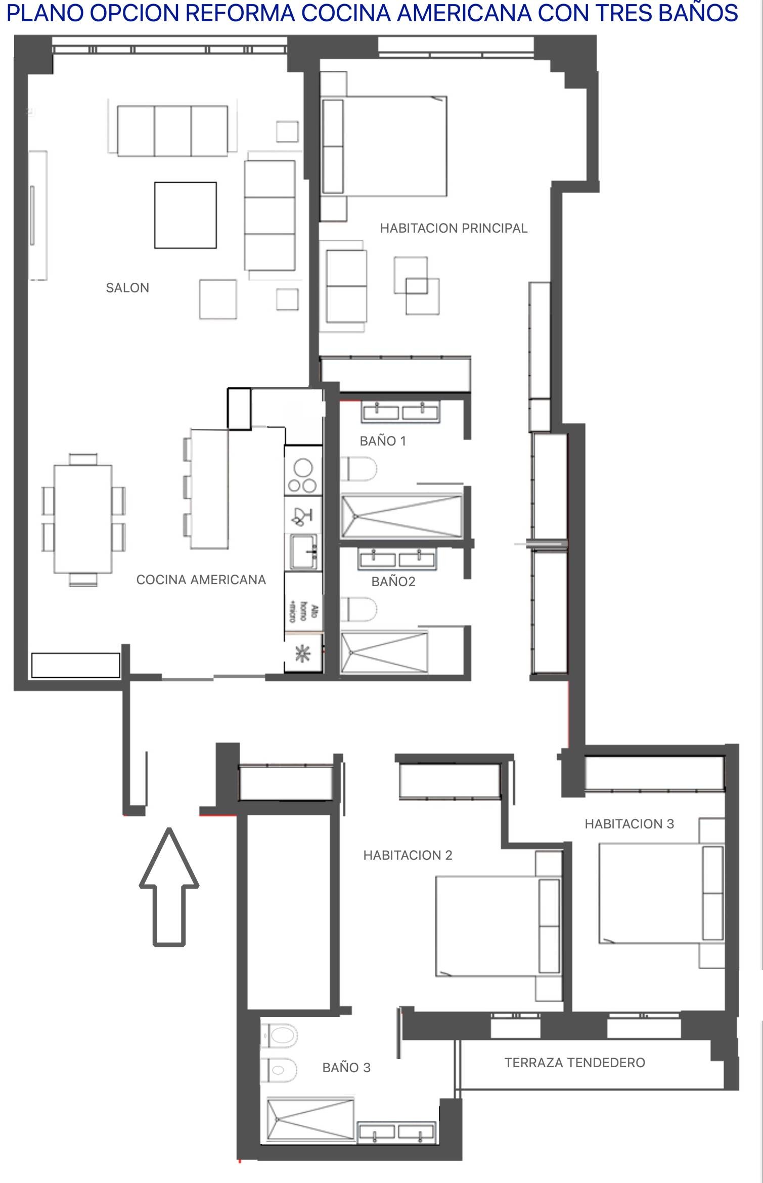
La vivienda cuenta con 146 m² construidos, de los cuales 132 m² corresponden a vivienda según Catastro, lo que la convierte en una opción excepcional por tamaño y posibilidades.
Destaca por su excelente distribución y gran potencial de reforma. Dispone de un impresionante salón de más de 40 m², luminoso gracias a su amplia ventana frontal, ideal para crear un espacio moderno y acogedor. Existe la posibilidad de integrar una cocina americana y habilitar un práctico cuarto de la colada o un tercer cuarto de baño completo en suite en la tercera habitación.
Cuenta con tres amplias habitaciones, destacando la habitación principal de más de 20 m² con baño en suite, ofreciendo un espacio privado y confortable. La vivienda dispone además de un segundo baño.
Ubicada en una finca con dos ascensores que comunican directamente con el garaje, aportando comodidad adicional ( la propiedad no dispone de plaza )
Gastos de comunidad 140€ mensuales con calefacción central incluida en la cuota, IBI 839 €/año
Su excelente localización garantiza una comunicación inmejorable, con acceso a transporte público, servicios, comercios y zonas verdes.
Condiciones de compra:
Impuesto de Transmisiones Patrimoniales (ITP): 6%
Gastos de notaría y registro no incluidos
El comprador no paga honorarios de agencia
Nota: La información contenida en este anuncio puede estar sujeta a posibles errores u omisiones.
Se ofrece magnífica vivienda de amplias dimensiones situada en una de las zonas más demandadas de Madrid, en el barrio de Retiro, zona Pacífico, a escasos pasos de la boca de metro Menéndez Pelayo y a tan solo cinco minutos caminando del Parque del Retiro.
La vivienda cuenta con 146 m² construidos, de los cuales 132 m² corresponden a vivienda según Catastro, lo que la convierte en una opción excepcional por tamaño y posibilidades.
Destaca por su excelente distribución y gran potencial de reforma. Dispone de un impresionante salón de más de 40 m², luminoso gracias a su amplia ventana frontal, ideal para crear un espacio moderno y acogedor. Existe la posibilidad de integrar una cocina americana y habilitar un práctico cuarto de la colada o un tercer cuarto de baño completo en suite en la tercera habitación.
Cuenta con tres amplias habitaciones, destacando la habitación principal de más de 20 m² con baño en suite, ofreciendo un espacio privado y confortable. La vivienda dispone además de un segundo baño.
Ubicada en una finca con dos ascensores que comunican directamente con el garaje, aportando comodidad adicional ( la propiedad no dispone de plaza )
Gastos de comunidad 140€ mensuales con calefacción central incluida en la cuota, IBI 839 €/año
Su excelente localización garantiza una comunicación inmejorable, con acceso a transporte público, servicios, comercios y zonas verdes.
Condiciones de compra:
Impuesto de Transmisiones Patrimoniales (ITP): 6%
Gastos de notaría y registro no incluidos
El comprador no paga honorarios de agencia
Nota: La información contenida en este anuncio puede estar sujeta a posibles errores u omisiones.
- Calificación consumo de energía: En trámite.
- Piso: planta 1.
- Plantas edificio: 7.
- Año de construcción: 1.983.
- Área total construida: 146 m2.
- Área total útil: 132 m2.
- Área salón: 40 m2.
- Habitaciones: 3.
- Baños: 2.
- Ascensores: 1.
- Estado de conservación: buen estado.
- Tipo calefacción: central.
- Agua caliente: individual.
- Interior/exterior: exterior.
- Amueblado: cocina amueblada.
- Equipamiento: balcón.
- Varios: admite mascotas.
- Puertas: madera barnizada.
- Ventanas: aluminio.
- Suelos: cerámica.
Datos de contacto
- Oficina: 1710 - Alfa Retiro
- Dirección: C/ Doctor Esquerdo 105 (Madrid - Madrid)
- Teléfonos: 656 800 930
- Whatsapp: 656 800 930
- Email: info@alfaretiro.com
- Web: www.alfaretiro.com
Localización
Propiedad en Avenida de la Ciudad de Barcelona
Hoja informativa. No incluidos gastos de Escrituración, Registro e Impuestos.
La oficina 1710, C/ Doctor Esquerdo 105 (Madrid - Madrid) con nombre fiscal José Luis Opazo Díaz y CIF: 44471847J
es responsable de los datos e información publicitados de este inmueble.
La oficina 1710, C/ Doctor Esquerdo 105 (Madrid - Madrid) con nombre fiscal José Luis Opazo Díaz y CIF: 44471847J
es responsable de los datos e información publicitados de este inmueble.



































